197 YONGE ST – SUITE 5303, Toronto

************************************LEASED************************************

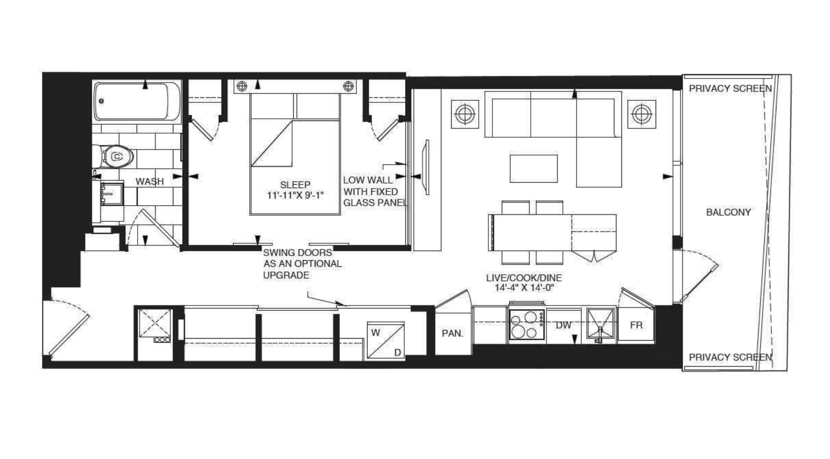
1 Bedroom

Core downtown prime location. Sun-filled move-in condition. 9 foot ceiling, panoramic eastview. Steps to Eaton Centre, TTC subway, street car, St Michael Hospital. Mins to TorontoMetropolitan University, U of T. Countless Amenities : 24 hrs concierge, fitness centre,Sauna, Juice Bar, Guest Suites, party room, etc. * Partial Furniture Included In The Lease

dollar sign

C12690262

dollar sign

$2,280

location icon

197 YONGE ST – SUITE 5303
Toronto, ON, M5B 0C1

city icon

bed icon

1

bath icon

1

bath icon

no

locker icon

no

property icon

Condo Apt

area icon

559 sqft

Request More Info

Other Active Listings In This Building